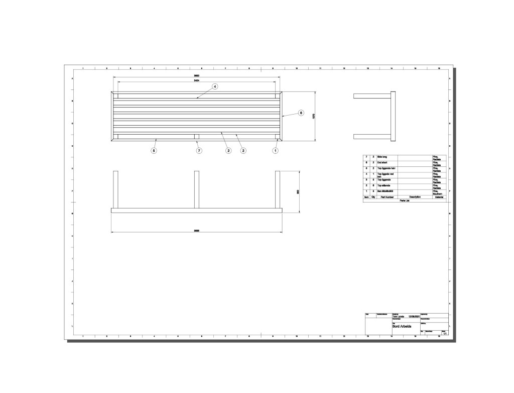
Arbeidsbord

Et stykke ute arbeidsbord, som også fungerer som oppbevaring plass for trikene.

Sånn så det ut, liker det nye rommet bedre.
Design endring under utføring av jobben. Hjørne ble styrket og enklere å lage. 98×98 var ikke det, men 94×94 så det ble utført noen tilpasninger, men alt ble ikke helt som ønsket. Bordet har allikevel den stabiliteten som var ønsket.
Sånn var det tenkt, standard løsning, men svak i enden og skarp, en ikke funksjonell løsning, bedre med en 45 grader i enden av den langs gående bjelkene.

Legg igjen en kommentar